| Prijs | € 1.100.000,- k.k. |
| Type object | Woonhuis, eengezinswoning, vrijstaande woning |
| Perceeloppervlakte | 1.437 m² |
| Woonoppervlakte | 179,8 m² |
| Aanvaarding | In overleg |
| Status | Verkocht |
Een karakteristiek huis, een grote loods, een groot perceel en een groots uitzicht over de polder. Deze bijzondere woning aan de Westgaag combineert duurzaamheid (A++) met rust, ruimte en veelzijdigheid. Vrijstaand wonen in het groen met alle voorzieningen dichtbij. Dit charmante woonhuis met royale fraaie tuin ligt op een unieke locatie in het buitengebied tussen Maasland, De Lier, Schipluiden en Maassluis. Achter de woning is een grote loods aanwezig; ideaal voor uw hobby óf als opslag voor bijvoorbeeld een ondernemer!
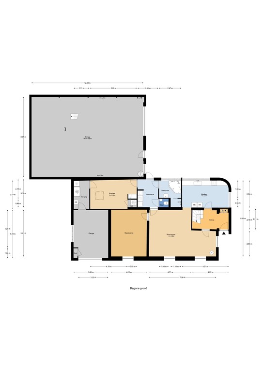
Begane grond: Oprit met parkeergelegenheid voor meerdere auto’s. De entree van de woning is aan de zijkant van de woning aanwezig. Ruime hal met meterkast, trap naar de verdieping en toegang tot de woonkamer aan de voorzijde en keuken aan de achterzijde. De woonkeuken is ruim opgezet en een lekker lichte ruimte dankzij twee grote raampartijen. De nette keuken is voorzien van diverse inbouwapparatuur. De woonkamer is aan de voorzijde van de woning gesitueerd. In de woonkamer zijn meerdere gezellige, sfeervolle plekjes aanwezig. De gehele benedenverdieping wordt verwarmd met vloerverwarming door middel van een (grond) warmtepomp (behalve de slaapkamer), maar er is ook een houtkachel aanwezig. Naast de woonkamer is de hoofdslaapkamer gelegen. Deze ruime slaapkamer is van elektrische vloerverwarming. Centraal aan de achterzijde van de woning is de tweede hal met toegang tot het toilet, de badkamer, het kantoor en de achtertuin. De badkamer beschikt over een hoekbad, een inloopdouche en een wastafel met meubel. In de hal zijn aansluitingen voor wasmachine en droger. Het kantoor is aan de achterzijde van de woning. Hier zijn diverse gebruiksmogelijkheden denkbaar. Vanuit het kantoor zijn de bergruimte en de naastgelegen garage te bereiken. In het kantoor is een kastruimte waar de warmtepomp is opgesteld. Aan de achterzijde van de woning begint de tuin. De tuin is zeer ruim en bied alle ruimte om te genieten van het buitenleven. Een prachtig aangelegde siertuin met diverse beplanting, een ruime moestuin voor oogst uit eigen tuin en voldoende parkeergelegenheid op eigen terrein. In de tuin zijn een hobbykas en diverse prieeltjes aanwezig. Echt een tuin om te ontdekken en te genieten.
Op de verdieping zijn momenteel twee slaapkamers en een ruime overloop aanwezig. Op de overloop zijn diverse inbouwkasten. Dankzij diverse dakramen komt er veel licht de woning binnen. De slaapkamer aan de voorzijde is voorzien van een ruime dakkapel. Het uitzicht vanuit deze kamer is prachtig. Het oud Nederlands landschap met weiland, molens, water en groen gaat nooit vervelen. Vanuit de grootste slaapkamer heeft u toegang tot het platte dak van de garage en aanbouw. Hier bestaat de mogelijkheid om een ruim terras te creëren.
Loods: Aan de achterzijde van de woning is een loods aanwezig. Deze multifunctionele ruimte is ideaal voor opslag, werk aan huis, een atelier of een hobby op groot formaat. De loods is toegankelijk via een overheaddeur en een loopdeur. In de loods is een smeerput gesitueerd. Elektra en verlichting zijn aanwezig. Locatie: De Westgaag ligt midden in het groene buitengebied, tussen Maasland, De Lier, Schipluiden en Maassluis. Een rustige landelijke plek waar u dagelijks kunt genieten van de ruimte, groen en vergezichten over het typische Nederlandse polderlandschap, terwijl u toch binnen enkele minuten de voorzieningen van de dorp met winkels en scholen bereikt. De rijkswegen A4, A20 en A24 zijn op enkele autominuten aanwezig. • Karakteristiek woonhuis met sfeer en klassieke luiken • Bouwjaar ca. 1953 (volgens opgave BAG) • Eigen grond • Energielabel A++ (geldig tot: 19-08-2035) • Recent verduurzaamd (warmtepomp, 36 zonnepanelen, zonnecollectoren (2x), HR, HR++ & HR+++ beglazing) • Toekomstbestendig wonen met badkamer en slaapkamer op de begane grond • Grote aangebouwde loods (ca. 12x9) achter de woning • Ruime parkeergelegenheid op eigen terrein • Ouderdomsclausule wordt opgenomen in de koopovereenkomst Kadastraal: Westgaag 34, 3155 DG Maasland Maasland, sectie I, nummer 2449, groot 14 are, 31 centiare Maasland, sectie I, nummer 2446, groot 6 centiare Kenmerken: Gebruiksoppervlakte wonen: ca. 180 m2 Loods: ca. 112 m2 Garage: ca. 21 m2 Perceeloppervlakte: ca. 1433 m2 Inhoud: ca. 1428 m3 Opleveren: in overleg nader te bepalen Ondanks dat deze brochure zorgvuldig is samengesteld kunnen er aan deze brochure geen rechten worden ontleend. Alle maten zijn ingemeten conform de NEN 2580 meetinstructie, alle data zijn circa. Deze brochure nodigt u uit tot het doen van een bod.
| Referentienummer | 05654 |
| Vraagprijs | € 1.100.000,- k.k. |
| Elektra | € 79,- |
| Water | € 15,- |
| Status | Verkocht |
| Aanvaarding | In overleg |
| Aangeboden sinds | Zaterdag 4 oktober 2025 |
| Laatste wijziging | Zaterdag 13 december 2025 |
| Type object | Woonhuis, eengezinswoning, vrijstaande woning |
| Soort bouw | Bestaande bouw |
| Bouwperiode | 1953 |
| Dakbedekking | Bitumen Dakpannen |
| Type dak | Kap met plat |
| Keurmerken | Energie prestatie advies |
| Isolatievormen | HR-glas Muurisolatie |
| Perceeloppervlakte | 1.437 m² |
| Woonoppervlakte | 179,8 m² |
| Woonkameroppervlakte | 34,38 m² |
| Keukenoppervlakte | 15,84 m² |
| Inhoud | 1.428 m³ |
| Oppervlakte overige inpandige ruimten | 149,4 m² |
| Oppervlakte externe bergruimte | 37,5 m² |
| Aantal bouwlagen | 2 |
| Aantal kamers | 5 (waarvan 4 slaapkamers) |
| Aantal badkamers | 1 (en 1 apart toilet) |
| Ligging | Afgelegen Buiten bebouwde kom Open ligging Platteland Vrij uitzicht |
| Type | Achtertuin |
| Energielabel | A++ |
| Aantal parkeerplaatsen | 6 |
| Aantal overdekte parkeerplaatsen | 4 |
| Warm water | Elektrische boiler Zonneboiler |
| Verwarmingssysteem | Elektrische verwarming Houtkachel Warmtepomp |
| Ventilatie methode | Mechanische ventilatie |
| Badkamervoorzieningen | Inloopdouche Ligbad Wastafel |
| Parkeergelegenheid | Aangebouwde stenen garage |
| Heeft een rookkanaal | Ja |
| Tuin aanwezig | Ja |
| Heeft een garage | Ja |
| Heeft een dakraam | Ja |
| Heeft zonnepanelen | Ja |
| Heeft ventilatie | Ja |
| Kadastrale aanduiding | Maasland I 2446 |
| Perceeloppervlakte | 6 m² |
| Omvang | Geheel perceel |
| Eigendomsituatie | Eigen grond |
| Kadastrale aanduiding | Maasland I 2449 |
| Perceeloppervlakte | 1.431 m² |
| Omvang | Geheel perceel |
| Eigendomsituatie | Eigen grond |