Met een eigen account kun je panden volgen, opslaan als favoriet, je zoekprofiel opslaan en jouw eigen notities bij een huis maken.
Algemeen
Rust en ruimte op een centrale plek in het dorp! Midden in het centrum van Maasland vind je deze uitstekend onderhouden, ruime vijf kamer hoekwoning op een zeer royaal perceel van maar liefst 403 m2! Deze woning is tot in de puntjes verzorgd afgewerkt en uitermate geschikt voor een opgroeiend gezin of mensen die op zoek zijn naar rust en ruimte maar wel graag op een centrale plek in het dorp wi... Meer informatie
-
Kenmerken
Alle kenmerken Type object Woonhuis, eengezinswoning, geschakelde woning Bouwperiode 1962 Status Nieuw in verkoop Aangeboden sinds Donderdag 12 maart 2026 -
Locatie
Kenmerken
| Overdracht | |
|---|---|
| Referentienummer | 05687 |
| Vraagprijs | € 795.000,- k.k. |
| Verwarming | € 150,- |
| Water | € 25,- |
| Inrichting | Niet gestoffeerd |
| Inrichting | Niet gemeubileerd |
| Status | Nieuw in verkoop |
| Aanvaarding | In overleg |
| Aangeboden sinds | Donderdag 12 maart 2026 |
| Bouw | |
|---|---|
| Type object | Woonhuis, eengezinswoning, geschakelde woning |
| Soort bouw | Bestaande bouw |
| Bouwperiode | 1962 |
| Dakbedekking | Bitumen, Dakpannen |
| Type dak | Zadeldak |
| Keurmerken | Energie prestatie advies |
| Isolatievormen | Dakisolatie, Dubbel glas, HR-glas, Muurisolatie, Spouwmuren |
| Oppervlaktes en inhoud | |
|---|---|
| Perceeloppervlakte | 403 m² |
| Woonoppervlakte | 145 m² |
| Woonkameroppervlakte | 56,01 m² |
| Keukenoppervlakte | 14,89 m² |
| Inhoud | 513 m³ |
| Oppervlakte externe bergruimte | 11 m² |
| Oppervlakte gebouwgebonden buitenruimte | 12,4 m² |
| Balkonoppervlakte | 6,21 m² |
| Indeling | |
|---|---|
| Aantal bouwlagen | 3 |
| Aantal kamers | 5 (waarvan 4 slaapkamers) |
| Aantal badkamers | 1 (en 1 apart toilet) |
| Locatie | |
|---|---|
| Ligging | Aan rustige weg, Dichtbij openbaar vervoer, In woonwijk, Nabij school, Nabij snelweg, Nabij winkelcentrum |
| Tuin | |
|---|---|
| Type | Voortuin |
| Oriëntering | Zuidoost |
| Staat | Goed onderhouden |
| Tuin 2 - Type | Achtertuin |
| Tuin 2 - Hoofdtuin | Ja |
| Tuin 2 - Oriëntering | Noord west |
| Tuin 2 - Heeft een achterom | Ja |
| Tuin 2 - Staat | Goed onderhouden |
| Energieverbruik | |
|---|---|
| Energielabel | C |
| CV ketel | |
|---|---|
| CV ketel | Vaillant |
| Warmtebron | Gas |
| Bouwjaar | 2018 |
| Combiketel | Ja |
| Eigendom | Eigendom |
| Uitrusting | |
|---|---|
| Aantal parkeerplaatsen | 1 |
| Warm water | CV-ketel |
| Verwarmingssysteem | Airconditioning, Centrale verwarming, Elektrische verwarming, Houtkachel, Vloerverwarming (gedeeltelijk) |
| Ventilatie methode | Mechanische ventilatie |
| Keukenvoorzieningen | Inbouwapparatuur, Spoeleiland |
| Badkamervoorzieningen | Dubbele wastafel, Inloopdouche, Ligbad, Toilet, Vloerverwarming, Wastafelmeubel |
| Parkeergelegenheid | Parkeerplaats |
| Heeft airco | Ja |
| Heeft een balkon | Ja |
| Heeft kabel-tv | Ja |
| Heeft een rookkanaal | Ja |
| Glasvezelaansluiting aanwezig | Ja |
| Tuin aanwezig | Ja |
| Heeft schuur/berging | Ja |
| Heeft een dakraam | Ja |
| Heeft zonwering | Ja |
| Heeft zonnepanelen | Ja |
| Heeft ventilatie | Ja |
| Kadastrale gegevens | |
|---|---|
| Kadastrale aanduiding | Maasland H 2768 |
| Perceeloppervlakte | 403 m² |
| Omvang | Geheel perceel |
| Eigendomsituatie | Eigen grond |
Beschrijving
Rust en ruimte op een centrale plek in het dorp! Midden in het centrum van Maasland vind je deze uitstekend onderhouden, ruime vijf kamer hoekwoning op een zeer royaal perceel van maar liefst 403 m2! Deze woning is tot in de puntjes verzorgd afgewerkt en uitermate geschikt voor een opgroeiend gezin of mensen die op zoek zijn naar rust en ruimte maar wel graag op een centrale plek in het dorp willen wonen. Niet alleen de woning is bijzonder ruim; ook het perceeloppervlak is écht uniek. De achtertuin is met een diepte van maar liefst 23 meter zeer royaal en biedt bovendien veel privacy. Parkeren is mogelijk op eigen terrein aan de voorzijde. Onder andere de lichte woonkamer met aanbouw aan de achterzijde en aan de zijkant, een luxe handgemaakte keuken en recent geplaatste badkamer met onder andere een vrijstaand ligbad zorgen er voor dat je hier met heel veel plezier zult gaan wonen.
Indeling
Begane grond:
Via de oprit bereik je de parkeerplaats op eigen terrein. De ruime voortuin met beplanting biedt toegang tot de woning. Lichte hal met trapopgang naar de verdieping, praktische trapkast en toiletruimte. De toiletruimte is voorzien van wandcloset, urinoir en fonteintje. Vanuit de hal is de ruime en sfeervolle woonkamer te bereiken. Deze ruimte is aangenaam licht dankzij de grote raampartij aan de voorzijde en het extra raam in de zijgevel. Ter hoogte van de zithoek is een houtkachel aanwezig die naast sfeer ook zorgt voor een aangename hoeveelheid warmte. Aan de achterzijde is de woonkamer uitgebouwd en voorzien van openslaande deuren naar de tuin. Bovendien is de voormalig garage aan de woonkamer toegevoegd en in gebruik genomen als eetkamer, waardoor de woonkamer nu extra breed en ruim is. Vanuit deze ruimte is er zicht op de sfeervolle zithoek aan de voorzijde via een stalen kozijn. De keuken met eiland is een ware eyecatcher! Deze is door de huidige eigenaar met de hand gemaakt en met zorg samengesteld. In de keuken vind je diverse inbouwapparatuur waaronder een koelkast met vriesvak, Boretti gasfornuis met dubbele oven, RVS afzuigkap, magnetron, vaatwasser en spoelbak. De woonkamer en keuken zijn voorzien van strak gestucte wanden, plafonds en een sfeervolle houten vloer in combinatie met vloerverwarming. Grenzend aan de keuken is een bijkeuken te vinden met schuifwandenkast en aansluitingen voor de wasmachine en wasdroger. Via een loopdeur in de bijkeuken is eveneens de achtertuin te bereiken. De achtertuin is uniek qua formaat; wat een énorm perceel gaat er achter deze woning schuil. Hier ervaar je een gevoel van ruimte, privacy en rust terwijl je midden in het dorp bent. De tuin is voorzien van een stenen berging, hobbykas en extra houten berging welke grenst aan een sfeervolle overkapping. Hier geniet je tot in de late uurtjes van de zon. De tuin is tevens te bereiken via een deur aan de zijkant.
Via de oprit bereik je de parkeerplaats op eigen terrein. De ruime voortuin met beplanting biedt toegang tot de woning. Lichte hal met trapopgang naar de verdieping, praktische trapkast en toiletruimte. De toiletruimte is voorzien van wandcloset, urinoir en fonteintje. Vanuit de hal is de ruime en sfeervolle woonkamer te bereiken. Deze ruimte is aangenaam licht dankzij de grote raampartij aan de voorzijde en het extra raam in de zijgevel. Ter hoogte van de zithoek is een houtkachel aanwezig die naast sfeer ook zorgt voor een aangename hoeveelheid warmte. Aan de achterzijde is de woonkamer uitgebouwd en voorzien van openslaande deuren naar de tuin. Bovendien is de voormalig garage aan de woonkamer toegevoegd en in gebruik genomen als eetkamer, waardoor de woonkamer nu extra breed en ruim is. Vanuit deze ruimte is er zicht op de sfeervolle zithoek aan de voorzijde via een stalen kozijn. De keuken met eiland is een ware eyecatcher! Deze is door de huidige eigenaar met de hand gemaakt en met zorg samengesteld. In de keuken vind je diverse inbouwapparatuur waaronder een koelkast met vriesvak, Boretti gasfornuis met dubbele oven, RVS afzuigkap, magnetron, vaatwasser en spoelbak. De woonkamer en keuken zijn voorzien van strak gestucte wanden, plafonds en een sfeervolle houten vloer in combinatie met vloerverwarming. Grenzend aan de keuken is een bijkeuken te vinden met schuifwandenkast en aansluitingen voor de wasmachine en wasdroger. Via een loopdeur in de bijkeuken is eveneens de achtertuin te bereiken. De achtertuin is uniek qua formaat; wat een énorm perceel gaat er achter deze woning schuil. Hier ervaar je een gevoel van ruimte, privacy en rust terwijl je midden in het dorp bent. De tuin is voorzien van een stenen berging, hobbykas en extra houten berging welke grenst aan een sfeervolle overkapping. Hier geniet je tot in de late uurtjes van de zon. De tuin is tevens te bereiken via een deur aan de zijkant.
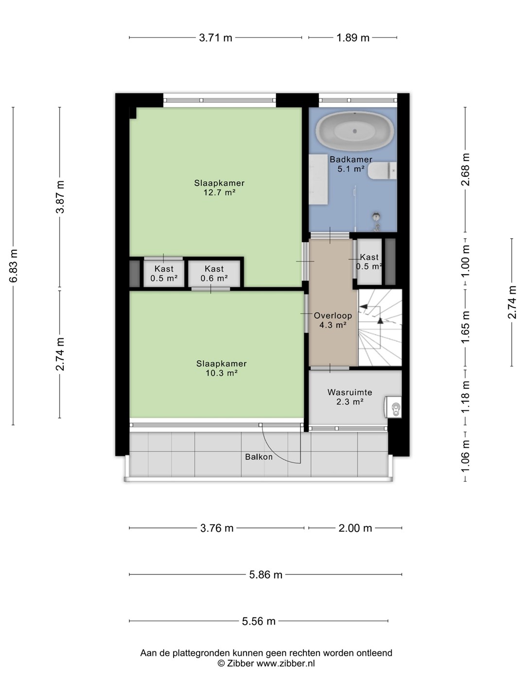
Eerste verdieping
Overloop met trapopgang naar de verdieping en toegang tot de vertrekken. De hoofdslaapkamer met sfeervolle verlichting bevindt zich aan de achterzijde van de woning en is ruim van formaat. In deze kamer is een airco-unit geïnstalleerd waarmee de ruimte zowel verwarmd als gekoeld kan worden. De tweede slaapkamer aan de voorzijde is eveneens ruim en grenst aan het balkon. Ook in deze kamer is een vergelijkbare airco-unit aanwezig. Naast deze kamer is een ruimte aanwezig met opstelplaats voor de C.V. ketel. Optioneel kunnen hier de wasmachine en wasdroger worden geplaatst. De badkamer aan de achterzijde is zeer luxe en modern afgewerkt met Beton Ciré in combinatie met een visgraat wandtegel. De badkamer is voorzien van een vrijstaand ligbad, dubbel wastafelmeubel, inloopdouche met regendouche, designradiator en tweede toilet.
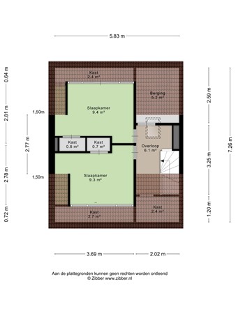
Tweede verdieping
Op de overloop vind je een ruime bergkast en dakraam. De overloop biedt toegang tot de slaapkamers aan de voor- en achterzijde. Beide slaapkamers zijn voorzien van een dakkapel en zijn daardoor goed van formaat. Achter de knieschotten is veel praktische bergruimte te vinden.
Bijzonderheden
Locatie:
Het dorp Maasland is centraal gelegen tussen Maassluis en Schipluiden. Van oorsprong is Maasland een agrarisch dorp. Rotterdam en Den Haag zijn dankzij de verbindingswegen A4 en A20 goed bereikbaar. Maasland heeft een actief verenigingsleven. Bovendien zijn de kinderopvang, scholen, gezondheidsvoorzieningen en diverse sportvoorzieningen in de nabije omgeving te vinden. De ligging van de woning in het centrum van Maasland is ideaal; de supermarkt en diverse winkels voor de dagelijkse boodschappen vindt u letterlijk om de hoek.
Bijzonderheden:
• Bouwjaar ca. 1962
• Perceeloppervlak: 403 m2 eigen grond
• Vijf kamers, waarvan vier slaapkamers
• Veel praktische bergruimte, zowel in de woning als in de tuin
• Parkeerplaats op eigen terrein
• Buitenschilderwerk voor het laatst uitgevoerd in 2024
• Veel woonruimte op de begane grond dankzij uitbouw en samenvoegen garage
• Energielabel C (geldig tot: 09 februari 2036)
• Ouderdomsclausule wordt opgenomen in de koopovereenkomst
Kadastraal:
Hildegaarde 14, 3155 VC Maasland
Maasland, sectie: H, nummer: 2768, groot: 4 are, 03 centiare
Kenmerken:
Gebruiksoppervlakte wonen: ca. 145 m2
Berging: ca. 6,8 m2
Perceeloppervlakte: ca. 403 m2
Inhoud: ca. 513 m3
Opleveren: In overleg nader te bepalen
Ondanks dat deze brochure zorgvuldig is samengesteld kunnen er aan deze brochure geen rechten worden ontleend. Alle maten zijn ingemeten conform de NEN 2580 meetinstructie, alle data zijn circa. Deze brochure nodigt u uit tot het doen van een bod.
Het dorp Maasland is centraal gelegen tussen Maassluis en Schipluiden. Van oorsprong is Maasland een agrarisch dorp. Rotterdam en Den Haag zijn dankzij de verbindingswegen A4 en A20 goed bereikbaar. Maasland heeft een actief verenigingsleven. Bovendien zijn de kinderopvang, scholen, gezondheidsvoorzieningen en diverse sportvoorzieningen in de nabije omgeving te vinden. De ligging van de woning in het centrum van Maasland is ideaal; de supermarkt en diverse winkels voor de dagelijkse boodschappen vindt u letterlijk om de hoek.
Bijzonderheden:
• Bouwjaar ca. 1962
• Perceeloppervlak: 403 m2 eigen grond
• Vijf kamers, waarvan vier slaapkamers
• Veel praktische bergruimte, zowel in de woning als in de tuin
• Parkeerplaats op eigen terrein
• Buitenschilderwerk voor het laatst uitgevoerd in 2024
• Veel woonruimte op de begane grond dankzij uitbouw en samenvoegen garage
• Energielabel C (geldig tot: 09 februari 2036)
• Ouderdomsclausule wordt opgenomen in de koopovereenkomst
Kadastraal:
Hildegaarde 14, 3155 VC Maasland
Maasland, sectie: H, nummer: 2768, groot: 4 are, 03 centiare
Kenmerken:
Gebruiksoppervlakte wonen: ca. 145 m2
Berging: ca. 6,8 m2
Perceeloppervlakte: ca. 403 m2
Inhoud: ca. 513 m3
Opleveren: In overleg nader te bepalen
Ondanks dat deze brochure zorgvuldig is samengesteld kunnen er aan deze brochure geen rechten worden ontleend. Alle maten zijn ingemeten conform de NEN 2580 meetinstructie, alle data zijn circa. Deze brochure nodigt u uit tot het doen van een bod.